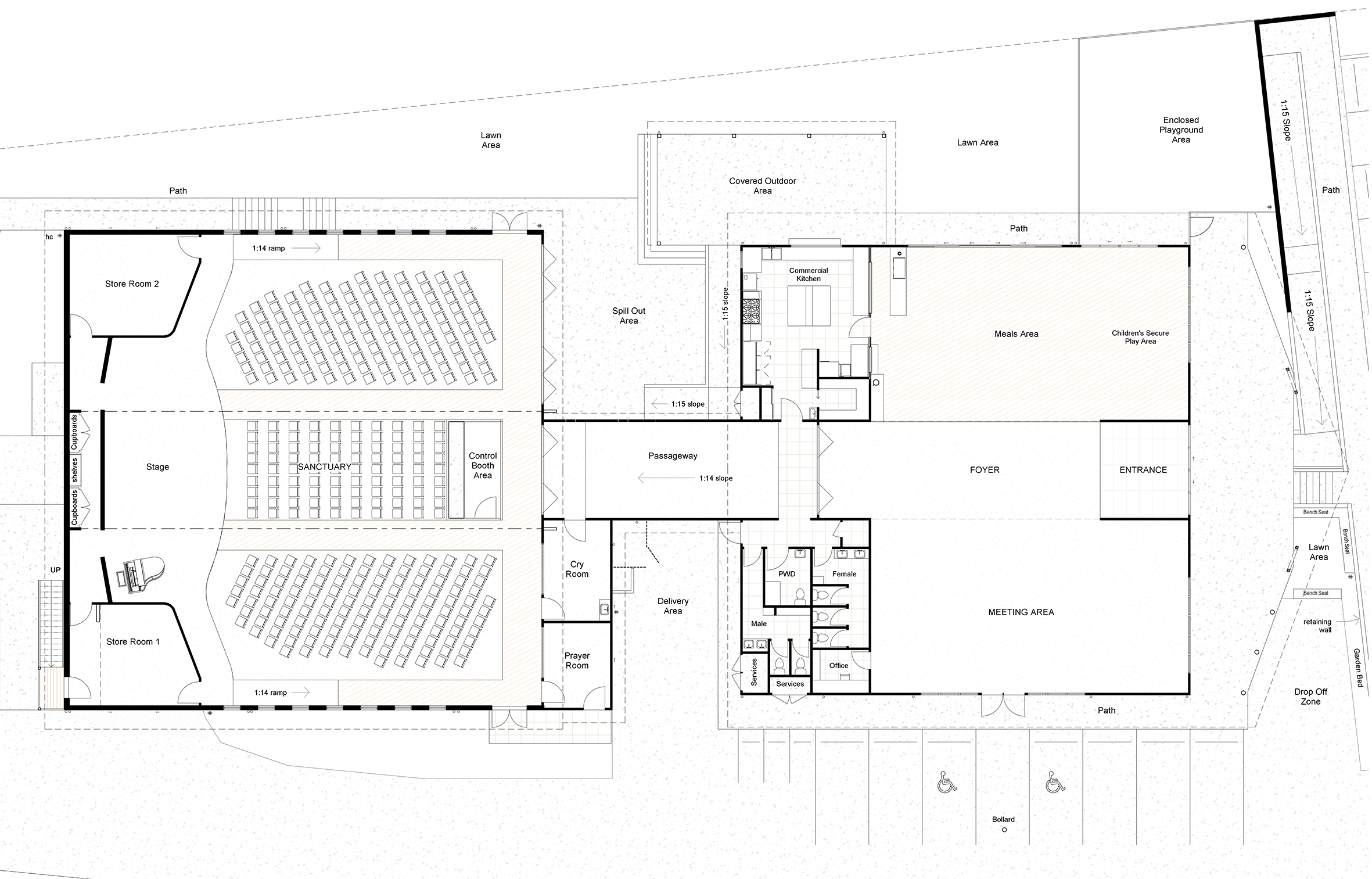
Devine Design, Gympie Drawings The congregation has outgrown their current space and is looking to expand. This beautiful and functional design is simply waiting for the funds and people to make it a reality. Existing site Back to Projects