NEAThouse
LAUNCHING IN QUEENSLAND IN JANUARY 2019
Steve Campbell Design is working closely with NEAThouse to create a range of sustainable, efficient, flexible and quality home designs for our local south east Queensland region, expanding their business from Tasmania.
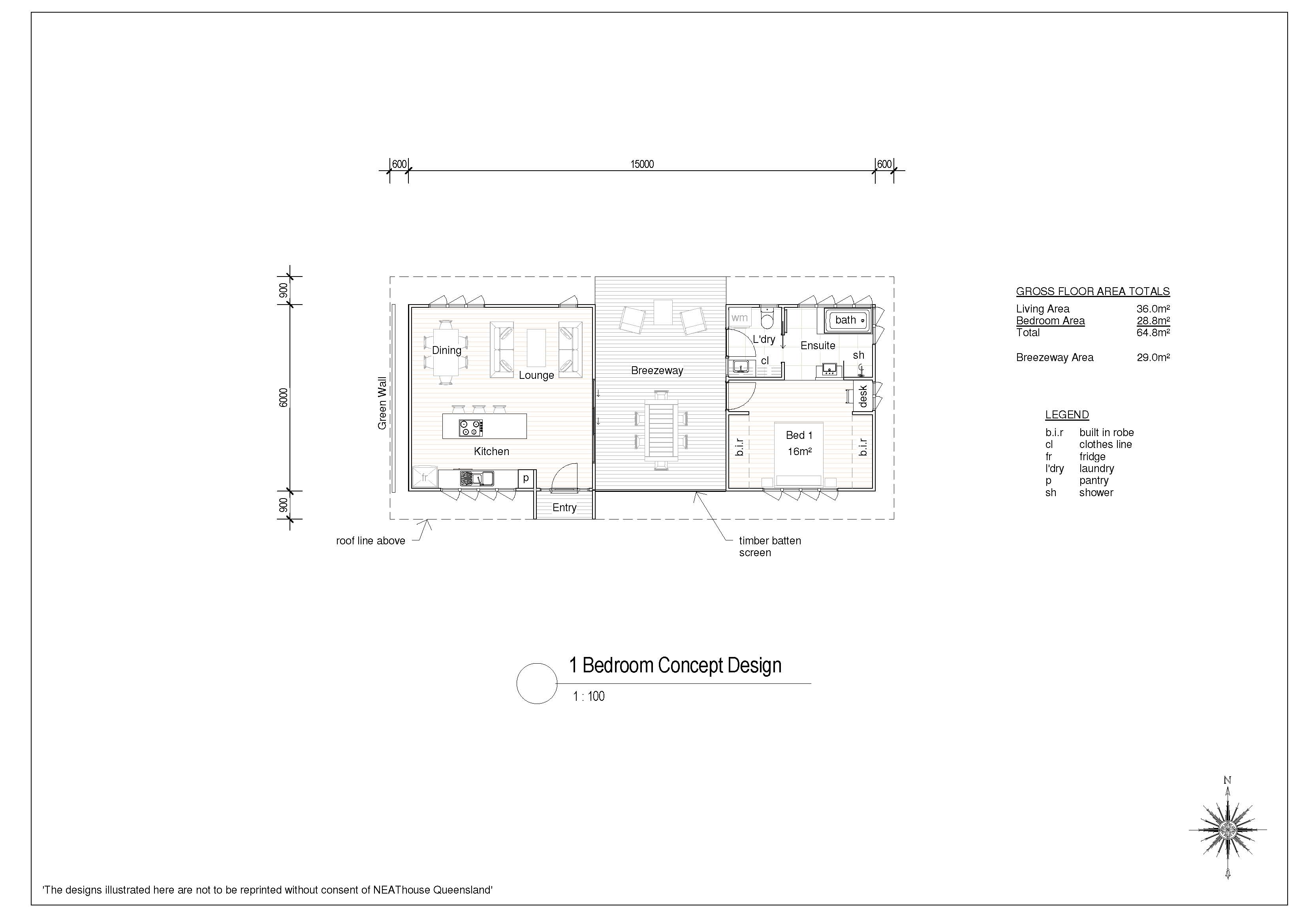
One bedroom design
Two bedroom design (2 versions)
Three bedroom design
From the NEAThouse web site:
NEAT stands for New Environmental Affordable and Timber. NEAThouse is a philosophy; not just a house! Its four guiding principles ensure each NEAThouse makes a substantial contribution to people and the planet.
With its four guiding principles in equal balance each NEAThouse makes a substantial contribution to people and the planet. A NEAThouse is beautiful to look at and to live in as well as economical to heat and cool. A priority is the use of natural and sustainable materials and materials that are free from any harmful chemicals or effects.
Construction of a NEAThouse involves intensive attention to detail and quality to produce a building that will stand the test of time. NEAThouse designs are simple but carefully crafted to maximise usability and amenity, and easily adapted to any site.
NEAThouse looks to make use of the best available knowledge, technology and design to create houses for now and into the future. There is no better time to build in a new way i.e. houses that are born out of an environmental, economic and local conscience. With these ideals you can create something beautiful, personal and affordable which has a positive impact on the community around you. We prioritise the use of local businesses and materials over cheaper, lower quality imported products.











