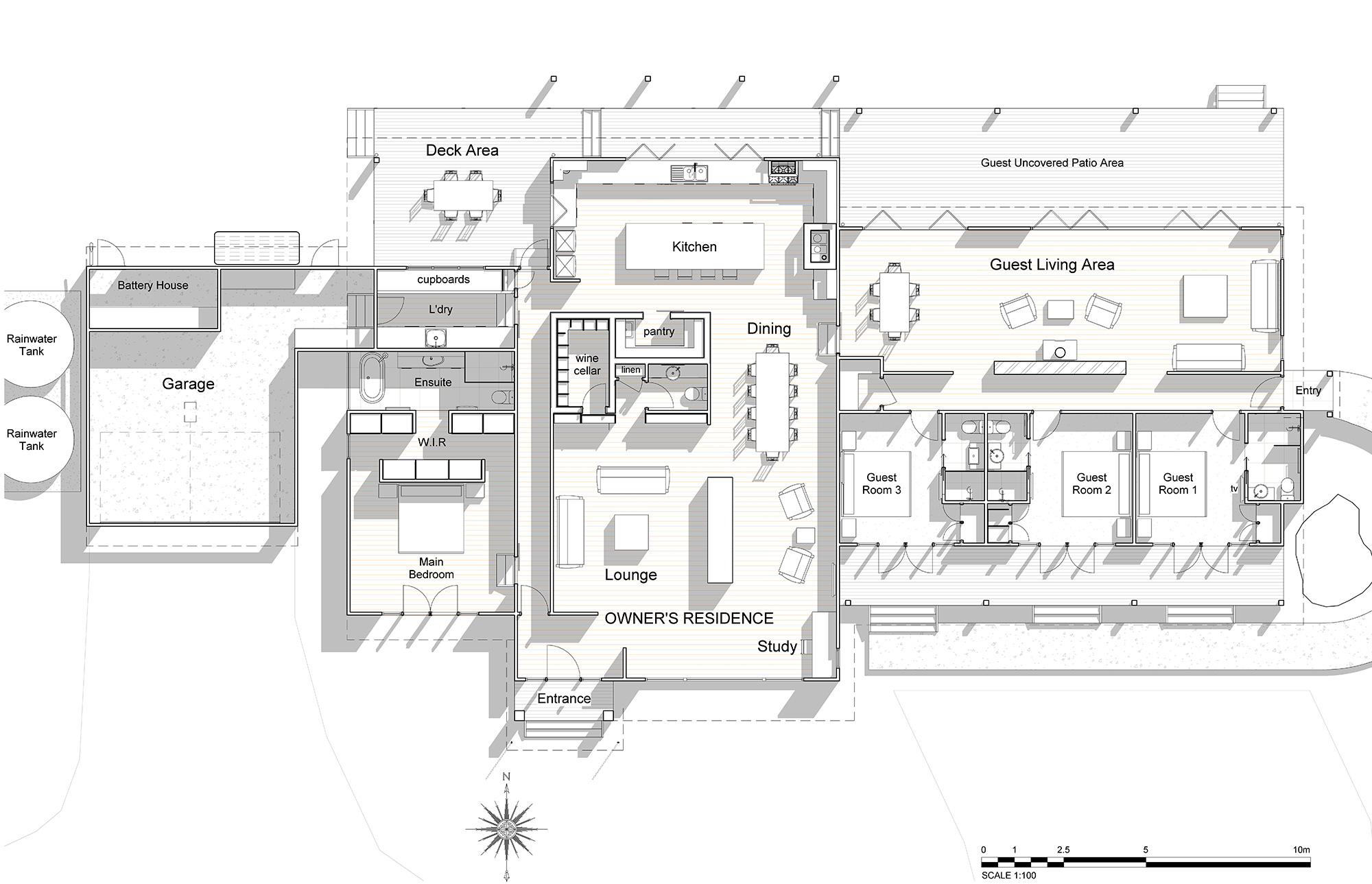
Severnlea Bed and Breakfast
Spacious and thoughtful bed and breakfast accommodation in the heart of the Granite Belt. This project includes a grand homestead with three guest rooms in addition to living space for the owners. Each bedroom includes a private ensuite and motel-style additions, and is adjacent to lounge, dining and outdoor deck for the exclusive use of guests.
The main part of the homestead is dedicated to luxurious living for the owners including large master bedroom, bathroom and walk-in-robes; huge gourmet kitchen designed for devoted cooks replete with wood-fired oven; and spacious living and dining areas. A secret cellar complete a lifelong desire for a bespoke home.
In addition to the homestead, three private cabins are located on the property and are fully self-contained for those guests who prefer to be autonomous.



